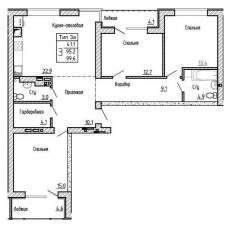
Купить 3-к квартиру, №10, 99,60 м², ул. Атамана Белова 1 поз 2, 2 этаж
Продаётся трехкомнатная квартира в городе Воронеж
в городе Воронеж в ближайшем пригороде Воронежа в с. Ямное, всего в 10 минутах езды от ТЦ "Град".
Трёхэтажные кирпичные дома построены в едином архитектурном стиле, кровля натуральная черепица, стены дома утеплены современными материалами, на каждую квартиру в городе Воронеж
в городе Воронеж рассчитано парковочное место, детский сад, школа.
Квартира продаётся в черновой отделке. Кирпичная кладка, 2-х камерные стеклопакеты, остекленная лоджия, автономное индивидуальное отопление (двухконтурный котёл), радиаторы, введено электричество, артезианская скважина, на полу полусухая стяжка отличного качества. Возможна отделка под чистовую.
Конец строительства
второй квартал
2025 года. Ипотека, мат капитал.


